ƾ֤¡¶ÖлªÈËÃñ¹²ºÍÁìÍÁµØÖÎÀí·¨¡·¡¢¹ú¼ÒÉú³¤ºÍË¢ÐÂίԱ»á¡¶¹ØÓÚÓ¡·¢¹ú¼ÒÉú³¤Ë¢ÐÂÎ¯ÖØ´óÀο¿×ʲúͶ×ÊÏîÄ¿Éç»áÎȹÌΣº¦ÆÀ¹ÀÔÝÐв½·¥µÄ֪ͨ¡·£¨·¢¸ÄͶ×Ê¡²2012¡³2492ºÅ£©¡¢¡¶¹ú¼ÒÉú³¤Ë¢ÐÂί°ì¹«Ìü¹ØÓÚÓ¡·¢<ÖØ´óÀο¿×ʲúͶ×ÊÏîÄ¿Éç»áÎȹÌΣº¦ÆÊÎöƪÕÂºÍÆÀ¹À±¨¸æÌåÀý¸ÙÒª£¨ÊÔÐУ©>µÄ֪ͨ¡·£¨·¢¸Ä°ìͶ×Ê[2013]428 ºÅ£©¡¢¹ã¶«Ê¡Ë¢ÐºÍÉú³¤Î¯Ô±»á¡¶¹ØÓÚÓ¡·¢ÖØ´óÏîÄ¿Éç»áÎȹÌΣº¦ÆÀ¹ÀÔÝÐв½·¥µÄ֪ͨ¡·£¨·¢¸ÄͶ×Ê¡²2012¡³1095ºÅÒÔ¼°Óйز¿·ÖµÄÏà¹ØÒªÇó£¬ÏÖ¶Ô¶«Ý¸ÊÐÍò½½ÖµÀдåÉçÇøC05-01µØ¿é¾É³§·¿¡°Èý¾É¡±Ë¢ÐÂÏîÄ¿Éç»áÎȹÌΣº¦ÆÀ¹À¾ÙÐÐÐÅÏ¢¹«Ê¾£¬¹«Ê¾Ê±´ú£¬½Ó´ý¸÷½çÈËÊ¿À´µç¡¢À´ÐÅ¡¢À´·ÃµÄÐÎʽ·´Ó¦ÇéÐΣ¬½ÒÏþ¿´·¨ºÍÒâ¼û¡£
Ò»¡¢ÏîÄ¿¸Å¿ö
£¨Ò»£©ÏîÄ¿Ãû³Æ£º¶«Ý¸ÊÐÍò½½ÖµÀдåÉçÇøC05-01µØ¿é¾É³§·¿¡°Èý¾É¡±Ë¢ÐÂÏîÄ¿
£¨¶þ£©ÕûÌåÍÁµØÈ¨Êôµ¥Î»£º¶«Ý¸ÊÐÍò½ÇøÐ´å¹É·Ý¾¼ÃÍŽáÉç
£¨Èý£©ÍýÏëÓÃ;£ºÒ»À๤ҵÓõأ¨M1£©£¨ÏîÄ¿µØ¿é×îÖÕÍýÏëÖ¸±êÒÔÏà¹Ø²¿·ÖÉó¶¨Îª×¼£©¡£
£¨ËÄ£©¸üÐÂÀàÐÍ£º¾É³§·¿Ë¢ÐÂ
£¨Î壩¸üÐÂģʽ£º´åÕûÌå×ÔÐÐË¢ÐÂ
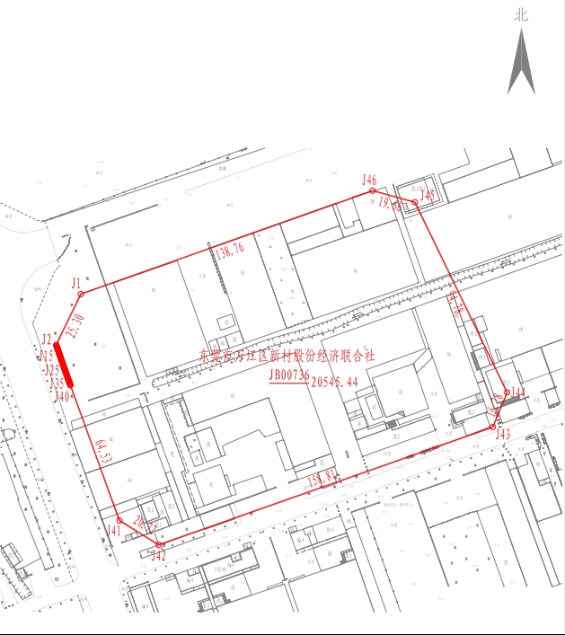
£¨Áù£©Ë¢Ð¹æÄ£¼°¹æÄ££ºÏîĿλÓÚ¶«Ý¸ÊÐÍò½½ÖµÀдåÉçÇøÃñӪ·C05-01µØ¿é£¨ÖÇÄÜÖÆÔìÖÐÐÄ£©µØ¿é£¬ÍÁµØ×ÜÓõØÃæ»ýΪ20545.44ƽ·½Ã×£¨ÏêϸÒÔÏÖʵÕÉÁ¿ºÍͳ¼Æ×ÊÁÏΪ׼£©¡£
£¨Æß£©Ë¢Ð¹æÄ£Ê¾ÒâͼÈçÏÂͼËùʾ£º

¶þ¡¢Õ÷Çó¹«ÖÚÒâ¼û¹¤¾ß
ˢйæÄ£ÄÚµÄÀûÒæÏà¹ØÕß¼°¿ÉÄÜÊÜÏîĿӰÏìµÄסÃñȺÖÚºÍÆóÊÂÒµµ¥Î»¡£
Èý¡¢Õ÷Çó¹«ÖÚÒâ¼ûµÄÖ÷ÒªÄÚÈÝ
£¨Ò»£©¶ÔÏîÄ¿µÄÏàʶÇéÐΣ»
£¨¶þ£©¶ÔÍâµØ¾¼ÃÉú³¤¡¢ÉúÑÄÆÜÉíµÄÓ°Ï죻
£¨Èý£©Ë¢ÐÂʱ´úÓ°Ïì±£´æµÄÖ÷ÒªÉç»áÎȹÌΣº¦£»
£¨ËÄ£©±¾ÏîÄ¿ÊÇ·ñÓ°Ïì×ÔÉíÀûÒæ£¬ÓкÎËßÇó£»
£¨Î壩¶ÔÏîÄ¿µÄÖ§³ÖÇéÐΣ»
£¨Áù£©¶Ô±¾ÏîÄ¿µÄÒâ¼ûºÍ½¨Òé¡£
ËÄ¡¢Õ÷Çó¹«ÖÚÒâ¼ûµÄÖ÷ÒªÊÂÏî¼°¹«ÖÚ¼ÓÈëÖ÷Òª·½·¨
¹«ÖÚ¿Éͨ¹ýµç×ÓÓʼþ¡¢Ðꝡ¢´«Õæ¡¢µç»°µÈ·½·¨ÏòÒÔϵ¥Î»½ÒÏþ¶ÔÉç»áÎȹÌΣº¦ÆÀ¹ÀÊÂÇéµÄÒâ¼ûºÍ½¨Òé¡£
£¨Ò»£©Ë¢ÐÂÖ÷Ìå
µ¥Î»Ãû³Æ£º¶«Ý¸ÊÐÍò½ÇøÐ´å¹É·Ý¾¼ÃÍŽáÉç
ÁªÏµÈË£ºÂ¬Î°½
ÁªÏµµç»°£º0769-22773542
µØµã£º¹ã¶«Ê¡¶«Ý¸ÊÐÍò½ÇøÐ´å´óз238ºÅ
£¨¶þ£©ÕûÌåÍÁµØÈ¨Êôµ¥Î»
µ¥Î»Ãû³Æ£º¶«Ý¸ÊÐÍò½ÇøÐ´å¹É·Ý¾¼ÃÍŽáÉç
ÁªÏµÈË£ºÂ¬Î°½
ÁªÏµµç»°£º0769-22773542
µØµã£º¹ã¶«Ê¡¶«Ý¸ÊÐÍò½ÇøÐ´å´óз238ºÅ
£¨Èý£©ÆÀ¹Àµ¥Î»
µ¥Î»Ãû³Æ£º¹ã¶«AG¹«Ë¾×ʲúÍÁµØ·¿µØ²úÆÀ¹ÀÓëÍýÏëÓÐÏÞ¹«Ë¾
ÁªÏµÈË£ºÁºÑàºÉ
ÁªÏµµç»°£º0769-39003333
ÓÊÏ䣺415220305@qq.com
µØµã£º¶«ÝÄþԸϳÇÇø»Æ½ð·1ºÅ¶«Ý¸Ìì°²ÊýÂë³ÇBÇø2ºÅ807ºÅ
Îå¡¢¹«Ê¾Ê±¼ä
×Ô¹«Ê¾Ö®ÈÕÆð30¸ö×ÔÈ»ÈÕ¡£
¶«Ý¸ÊÐÍò½ÇøÐ´å¹É·Ý¾¼ÃÍŽáÉç
2024Äê6ÔÂ5ÈÕ